PRIVATE SALE - LAND AND HOUSE PACKAGE
21a Patricia Street, Bentleigh East, Victoria 3165
Price Guide: $1,750,000 - $1,800,000
Unique opportunity to purchase off the plan luxury townhouse in Bentleigh East

Contemporary luxury meets family functionality

🛏️
4
Bedrooms
🚿
3
Bathrooms
🚽
2
Powder Rooms
🚗
2
Car Spaces
🏡
2
Outdoor Entertaining
💼
Study
🛋️
Upstairs Retreat
👔
Walk in Wardrobe
🔥
Gas & Electricity
6
Energy Rating
🏗️
Superior Foundations
🔇
Maximum Sound Insulation

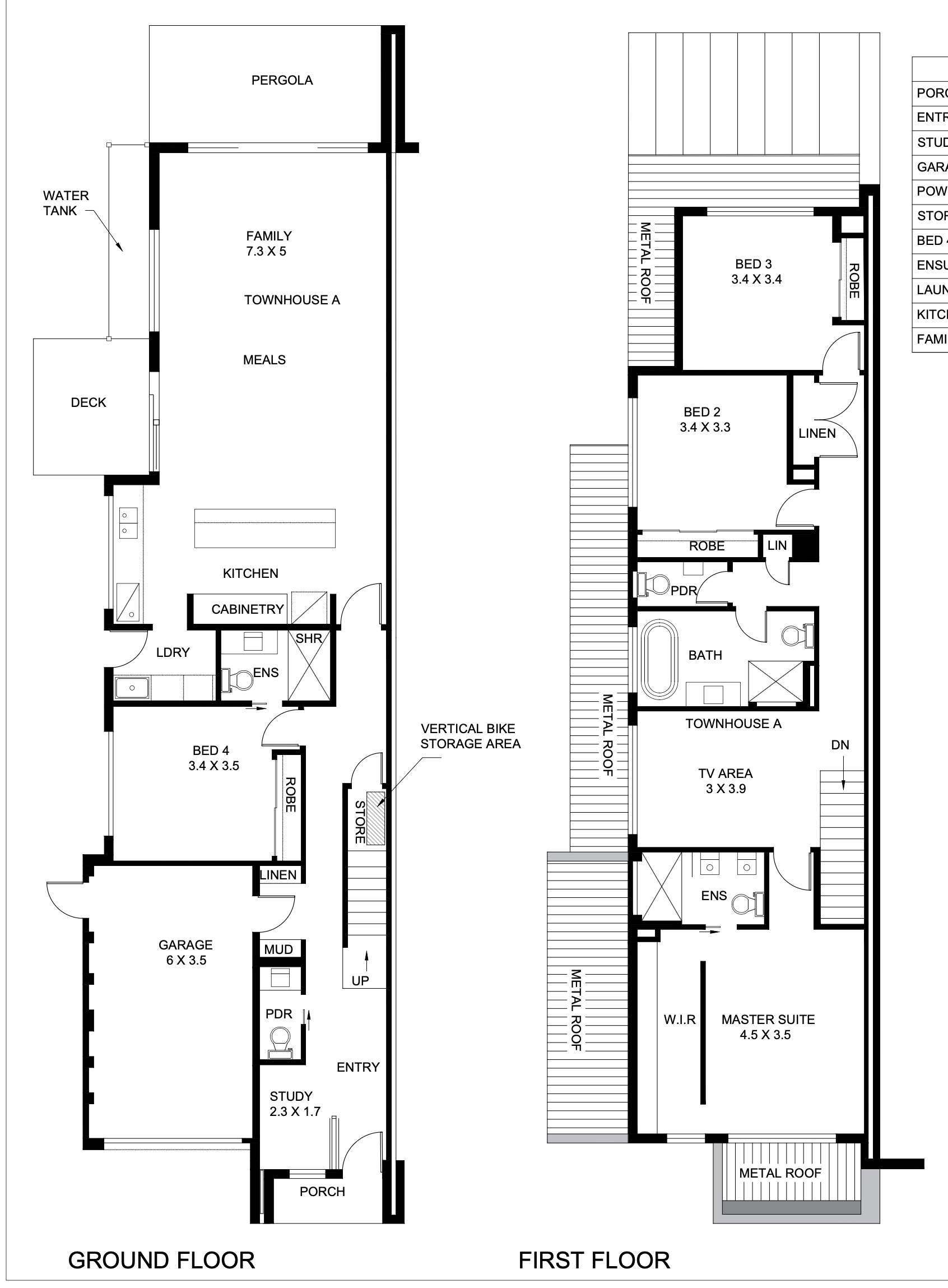
Superbly designed and meticulously planned, this exceptional brand new four bedroom, three bathroom townhouse delivers sophisticated low-maintenance living for the modern and busy family.

With an open feel, this contemporary home features double glazed glass throughout as the ground floor welcomes you through a stylish bluestone entrance to a versatile study. The long hallway with elegant powder room, and mud wardrobe compliments the direct secure garage entrance inviting all aspects of family life and discerning guests. The heart of the home features a stunning open-plan living and dining area able to be sectioned off from the rest of the house and showcases a designer kitchen, premium stone benchtops, quality dual ovens, a gas/induction cooktop, dishwasher and large convenient pantry flowing to the laundry with external access. A spacious ground floor guest bedroom with a luxurious tiled ensuite provides stunning guest accommodation.

Ascend upstairs to discover a generous retreat for multi generational living, a divine main bedroom suite with walk-in robe and glamorous ensuite including dual vanities. Two further well-proportioned bedrooms with built-in robes serviced by a stylish central bathroom featuring a freestanding bath and additional independent powder room.

The peaceful dual private outdoor decks captures the afternoon sun and creates perfect multi zone alfresco entertaining surrounded by natural Australian native mature landscapes and low maintenance lawns.

Finished with contemporary fixtures, warm timber floors, ducted heating and cooling throughout, high ceilings, abundant natural light, garden shed, water tank and auto garage door, this enviable home provides modern comfort, elegance and timeless appeal.

Positioned in the highly sought-after Coatesville Primary School zone and just moments from St Peter's School, St Bedes Bentleigh Campus, Kilvington Grammar, Oakleigh Grammar, and Monash university. The area also includes local parks, Yarra Yarra and Commonwealth Golf Clubs, Mackie Road shops, and an array of high quality Centre Road cafes and restaurants. Experience ultimate convenience with Links Shopping Centre just a short stroll from your door, or the famous Oakleigh shopping centre minutes away by car.

This is an exceptional opportunity to secure your family's future in one of Bentleigh East's most desirable locations.

Property Features and Options

Key Features

  • 🍳 Designer kitchen with 2 ovens, premium appliances and stone benchtops
  • 🏡 2x Private outdoor entertaining areas
  • 🪟 Double glazed windows, ducted heating/cooling for year-round comfort
  • 🏫 Zoned for Coatesville Primary, stroll to schools, shops, transport
  • 🌳 Australian Native low maintenance landscaping with mature trees
  • 🚗 1 Garage space + 1 Open car space
  • 📡 nbn HFC available - Hyper fast speeds up to 2000 Mbps

Premium Inclusions

  • ✓ Upgraded foundations - Superior Raft Slab
  • ✓ Upgraded Sound Insulation - superior Hebel insulation
  • ✓ Dual ovens in Kitchen

🎨 Available Options

  • ✓ Miele or Smeg ovens
  • ✓ Gas or induction cooktops
  • ✓ Instantaneous gas or heatpump hot water
  • ✓ Glass balustrade
  • ✓ Sink in kitchen island
  • ✓ Your choice of internal fit outs such as flooring, taps, bench tops, tiles, colour scheme (within the ranges)

🔧 Available Upgrades

  • ✓ Gas Fireplace
  • ✓ Cantilever or Semi Cantilever stairs
  • ✓ Solar panels

Property Location & Amenities

Property Location

Nearby Schools & Childcare

School Type Distance
Coatesville PrimaryGovt0.30km
St Peter's SchoolCatholic0.38km
Valkstone PrimaryGovt1.18km
East Bentleigh PrimaryGovt1.63km
Hughesdale PrimaryGovt1.75km

Local Amenities

Transport Type Distance
Bentleigh StationTrain1.2km
Murrumbeena StationTrain1.8km
Oakleigh StationTrain2.1km
Bus Route 703Bus0.3km

Virtual Tour

House and Land Package Details

Package Benefits

  • ✓ Zero or reduced stamp duty (Current Victorian concession)
  • ✓ Guaranteed completion 12 months after build commences
  • ✓ Work starts 2 months after signing
  • ✓ Design your own interior colour schemes and fittings

Standard Timeline

  • Week 1: Land and building contract signed - 10% deposit
  • Week 8: Land title purchase price paid (in escrow)
  • Week 9: Land title released
  • Week 10: Commence build - Stage 1 (Slab) - 20% payment
  • Week 20: Stage 2 (Frame) - 20% payment
  • Week 32: Stage 3 (Lock-up) - 20% payment
  • Week 50: Stage 4 (Fit Out & Completion) - 30% final payment

Award Winning Bayside Builder

MJS Construction Group
HIA Winner HIA Finalist HIA Construction Winner HIA Construction Winner 2022 HIA Construction Winner 2022 HIA Winner Townhouse HIA Finalist Apartment HIA Finalist Custom Home HIA Finalist Renovation HIA Finalist 1M HIA Finalist 1.5-2M

Detailed Specifications

Download Specification PDF

Contact Details

We are not developers or real estate agents. We are Bentleigh locals developing a townhouse looking for a suitable purchaser.

If you're interested, please contact us at 21patricia@outlook.com

Please include in your email:

  • ✓ Your current situation and timeline
  • ✓ Whether you wish to upgrade or change the specifications
  • ✓ If you require finance

Get In Touch

Email Us